首页
设计案例
一层别墅
二层别墅
三层别墅
多层别墅
施工案例
建房资讯
设计百科
施工百科
行业动态
关于嘉庭
联系我们
电话:13540838680
首页
设计案例
案例详情
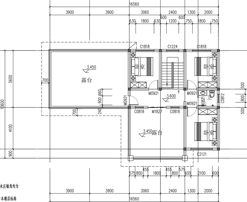
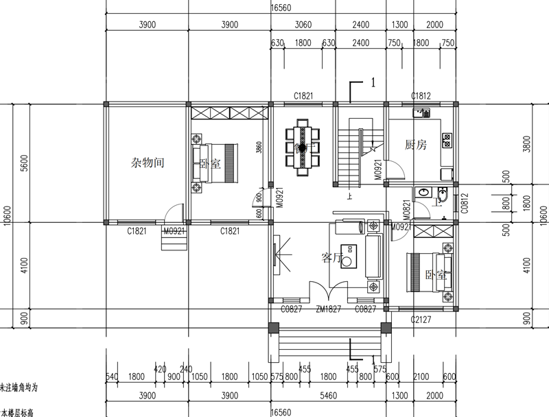
开间16.8米,进深10.3米,二层新中式风格自建别墅,带二楼大露台设计!
时间:2025-12-18 22:12:27
浏览人数:189
作者:HUAHUA
建筑层数:
二层别墅
占地面积:
140.9平米
建筑面积:
162.4平米
建筑开间:
16.8米
建筑进深:
10.3米
JT-175
上一篇:
开间12.9米。进深12.6米。农村自建二层新中式风格住宅别墅设计,二楼露台设计外观轻奢风!
下一篇:
开间12米,进深10米,农村自建二层乡村风格住宅别墅设计,带偏房及二层大露台设计!
设计百科
成都新都区二层自建房设计施工,开间12.5米、进深16米,带玻璃屋顶露台设计!
农村二层新中式别墅,占地100多平,带二楼阳台设计!
农村三层现代风格别墅图纸设计,三楼大露台、平顶设计风格
农村新中式风格自建房二层建筑,带挑空客厅设计,二楼侧面设计大露台!
农村三层现代风格自建别墅,一层挑空客厅设计
农村三层简欧自建房设计,占地88平方带大露台!
施工百科
成都新都区三层自建新中式风格别墅看,开间12.03米、进深12.79米,带挑空客厅设计!
成都大邑二层农村自建开间10.46米、进深10.94米,欧式风格别墅设计施工案例!
农村建房地基要多少钱,不同地基价格不同,提前了解早做规划
农村盖房需要多少钱,不用地区价格有些差异
农村自建房找施工队-价格优惠,诚信可靠,值得信赖
农村砖混结构盖房施工队-专业高效,品质有保障