• 首页
  • 设计案例
    一层别墅 二层别墅 三层别墅 多层别墅
  • 施工案例
  • 建房资讯
    设计百科 施工百科 行业动态
  • 关于嘉庭
  • 联系我们
  • 电话:13540838680
  1. 首页
  2. 设计案例
  3. 案例详情

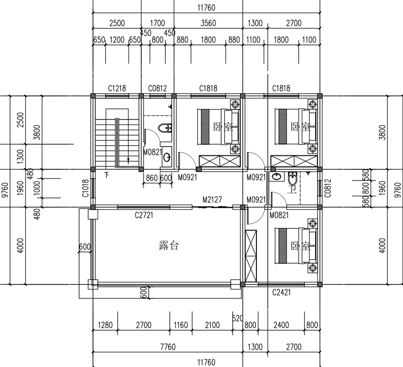
开间12米,进深10米,农村自建二层乡村风格住宅别墅设计,带偏房及二层大露台设计!

时间:2025-12-12 20:46:52 浏览人数:121 作者:HUAHUA
建筑层数:二层别墅
占地面积:120平米
建筑面积:209平米
建筑开间:12米
建筑进深:10米

087674e1766435c54326d1651440591b.jpg

09f7d429fee293b68117b7ce27feadf4.jpg

550687388193d68f844492a19c510441.jpg

54e0a70a-de66-4008-a022-edaabee3f646.png

f4ba3324-4e60-4405-9dc2-d1bd75471c42.png

JT-174

上一篇: 第一页
下一篇: 开间15.8米,进深9.8米,农村二层自建住宅别墅设计,带露台阳台双设计!

设计百科

  • 成都新都区二层自建房设计施工,开间12.5米、进深16米,带玻璃屋顶露台设计!
  • 农村二层新中式别墅,占地100多平,带二楼阳台设计!
  • 农村三层现代风格别墅图纸设计,三楼大露台、平顶设计风格
  • 农村新中式风格自建房二层建筑,带挑空客厅设计,二楼侧面设计大露台!
  • 农村三层现代风格自建别墅,一层挑空客厅设计
  • 农村三层简欧自建房设计,占地88平方带大露台!

施工百科

  • 成都新都区三层自建新中式风格别墅看,开间12.03米、进深12.79米,带挑空客厅设计!
  • 成都大邑二层农村自建开间10.46米、进深10.94米,欧式风格别墅设计施工案例!
  • 农村建房地基要多少钱,不同地基价格不同,提前了解早做规划
  • 农村盖房需要多少钱,不用地区价格有些差异
  • 农村自建房找施工队-价格优惠,诚信可靠,值得信赖
  • 农村砖混结构盖房施工队-专业高效,品质有保障
农村自建房设计公司

一层别墅

二层别墅

三层别墅

多层别墅

设计百科

施工百科

行业动态

设计公司

设计图纸

建房专题

关于我们

联系我们

联系我们

13540838680

自建房设计公司联系方式

微信扫码联系

嘉庭乡墅建筑设计有限公司,蜀ICP备2025164756号,网站地图