传世欧式大宅,启幕家族奢雅生活
以欧式经典为笔,绘就当代奢居范本,这栋三层欧式大宅,是望族门第的理想归处。
挑空客厅:约 6 米挑高会客厅,轩朗通透,阳光倾泻而入,无论是家族欢聚还是商务宴请,皆能尽显排场与气度。
欧式风骨:米白石材立面搭配鎏金线条,雕花拱窗与罗马柱交相辉映,每一处细节都镌刻着古典美学的精致与华贵。
三层格局:分层规划私密起居与社交空间,顶层露台可尽揽山景风华,让家族生活既享天伦之乐,又各拥一方天地。 一宅鉴尽欧式风华,一院私藏家族荣光。在这里,经典形制与现代奢居相融,为您打造可传世的家族宅邸。

正面效果图

背面效果图

鸟瞰效果图

一层户型:大厅、餐厅、品茶区、厨房、主卧室(带卫生间)

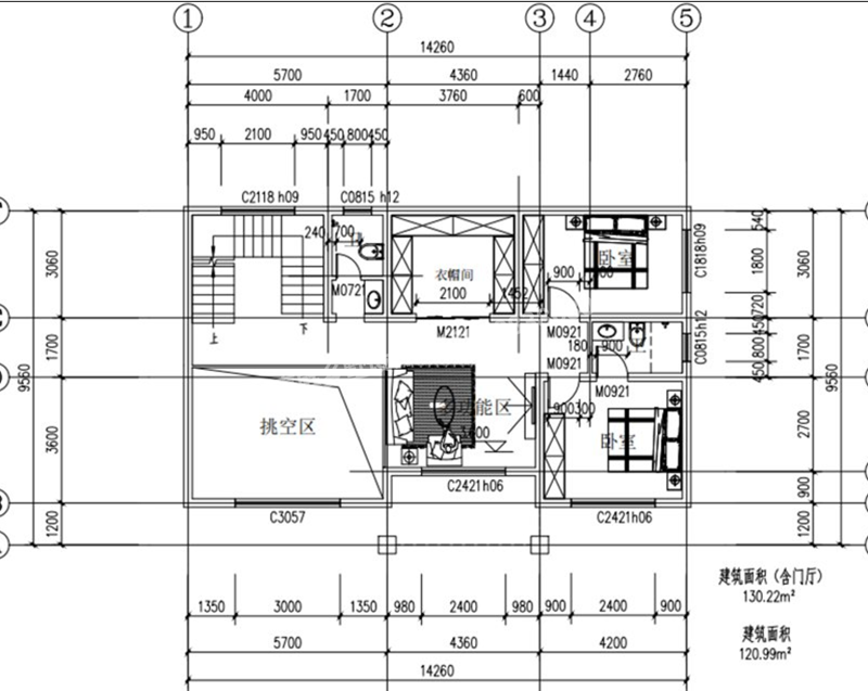
二层户型:多功能休闲区、主卧室(带卫生间)、次卧室、衣帽间、公卫

三层户型:书房、主卧室(带卫生间)、次卧x2、公卫、露台休闲区