首页
设计案例
一层别墅
二层别墅
三层别墅
多层别墅
施工案例
建房资讯
设计百科
施工百科
行业动态
关于嘉庭
联系我们
电话:13540838680
首页
设计案例
案例详情
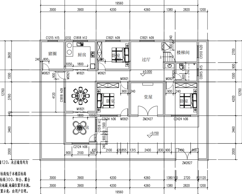
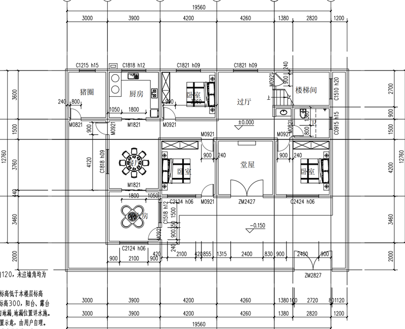
开间20米、进深13米,农村自建二层新中式风格住宅别墅设计,带二楼露台设计!
时间:2026-01-29 15:11:28
浏览人数:137
作者:HUAHUA
建筑层数:
二层别墅
占地面积:
257平米
建筑面积:
412平米
建筑开间:
20米
建筑进深:
13米
JT-272
上一篇:
开间15米、进深13米,农村自建三层现代风格住宅别墅设计,外观几何线条,平屋顶设计!
下一篇:
开间11米、进深10.6米,农村自建二层现代极简风格住宅别墅设计,外观几何造型拼接而成,轻奢风设计!
设计百科
开间14米、进深10米,三层农村自建经典欧式风格别墅设计,带挑空客厅设计!
农村三层新中式奢华风格别墅设计图纸,挑空客厅设计
农村二层新中式别墅,占地100多平,带二楼阳台设计!
农村三层现代风格别墅图纸设计,三楼大露台、平顶设计风格
农村新中式风格自建房二层建筑,带挑空客厅设计,二楼侧面设计大露台!
农村三层现代风格自建别墅,一层挑空客厅设计
施工百科
农村建房地基要多少钱,不同地基价格不同,提前了解早做规划
农村盖房需要多少钱,不用地区价格有些差异
农村自建房找施工队-价格优惠,诚信可靠,值得信赖
农村自建房基础施工步奏,以及基础施工注意细节
农村建别墅斜坡屋面怎么施工,施工时要注意哪些事项
农村自建房施工要注意哪些细节,在砌砖的时候一定要注意