• 首页
  • 设计案例
    一层别墅 二层别墅 三层别墅 多层别墅
  • 施工案例
  • 建房资讯
    设计百科 施工百科 行业动态
  • 关于嘉庭
  • 联系我们
  • 电话:13540838680
  1. 首页
  2. 设计案例
  3. 案例详情

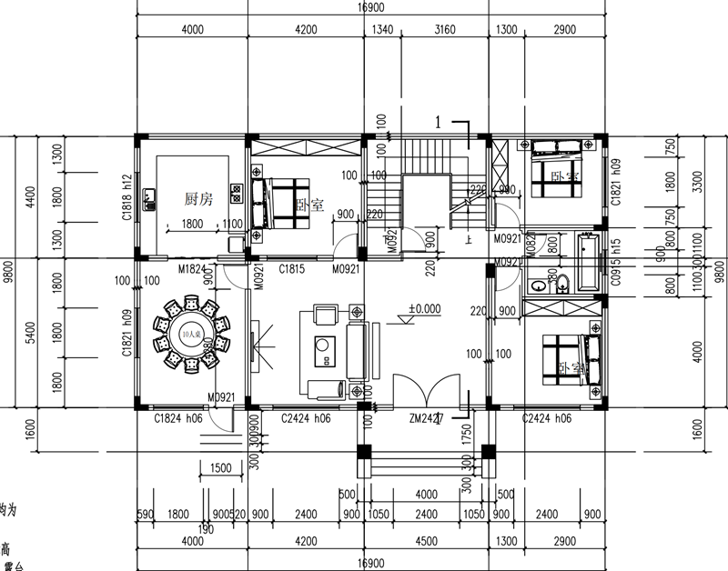
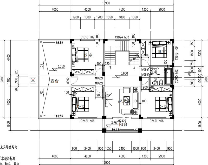
开间17米,进深10米,农村自建二层欧式风格住宅别墅设计,带偏房餐厨一体设计!

时间:2026-01-24 15:18:41 浏览人数:135 作者:HUAHUA
建筑层数:二层别墅
占地面积:166平米
建筑面积:292平米
建筑开间:17米
建筑进深:10米

2ee6f129101e40034bada140543f67c.jpg

032c74536e15841a99062382a79984a.jpg

8e039b0b42b66a2c9db98aa72113487.jpg

53c405d6-acfa-4d0d-8365-47142806c5c1.png

c087962e-90f1-41aa-a20d-955ce4927d6d.png

JT-242

上一篇: 开间13米,进深27米,农村二层自建欧式风格住宅别墅设计,带院子偏房厨餐一体设计!
下一篇: 开间12米,进深11米,农村自建二层新中式风格住宅别墅设计,带二楼大露台设计!

设计百科

  • 农村二层新中式别墅,占地100多平,带二楼阳台设计!
  • 农村三层现代风格别墅图纸设计,三楼大露台、平顶设计风格
  • 农村新中式风格自建房二层建筑,带挑空客厅设计,二楼侧面设计大露台!
  • 农村三层现代风格自建别墅,一层挑空客厅设计
  • 农村三层简欧自建房设计,占地88平方带大露台!
  • 农村两层新中式别墅图纸设计,带落地窗大客厅,简洁明亮!

施工百科

  • 农村建房地基要多少钱,不同地基价格不同,提前了解早做规划
  • 农村盖房需要多少钱,不用地区价格有些差异
  • 农村自建房找施工队-价格优惠,诚信可靠,值得信赖
  • 农村自建房基础施工步奏,以及基础施工注意细节
  • 农村建别墅斜坡屋面怎么施工,施工时要注意哪些事项
  • 农村自建房施工要注意哪些细节,在砌砖的时候一定要注意
农村自建房设计公司

一层别墅

二层别墅

三层别墅

多层别墅

设计百科

施工百科

行业动态

设计公司

设计图纸

建房专题

关于我们

联系我们

联系我们

13540838680

自建房设计公司联系方式

微信扫码联系

嘉庭乡墅建筑设计有限公司,蜀ICP备2025164756号,网站地图