• 首页
  • 设计案例
    一层别墅 二层别墅 三层别墅 多层别墅
  • 施工案例
  • 建房资讯
    设计百科 施工百科 行业动态
  • 关于嘉庭
  • 联系我们
  • 电话:13540838680
  1. 首页
  2. 设计案例
  3. 案例详情

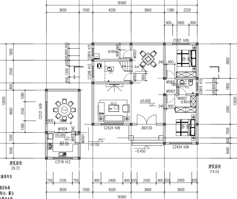
开间17米,进深13米,农村自建二层乡村风格住宅别墅设计,带偏方餐厨一体设计!

时间:2026-01-21 09:40:48 浏览人数:123 作者:HUAHUA
建筑层数:二层别墅
占地面积:144平米
建筑面积:259平米
建筑开间:17米
建筑进深:13米

e6eeaac5ca06cfdf0651012c91d4a36.jpg

b9f0d0405913c28d2e501296f67c3d5.jpg

eb691cc27dcabba9cc518bf8a74da79.jpg

20dafdff-1718-4d10-a230-0a90527ef7da.png

a37a571b-aaab-4582-940c-4243d6133579.png

JT-202

上一篇: 开间12米,进深11米,农村自建二层现代风格别墅设计,带二楼大露台设计!
下一篇: 开间13米,进深11米,农村自建二层新中式风格住宅别墅设计,带二楼阳台设计!

设计百科

  • 开间14米、进深10米,三层农村自建经典欧式风格别墅设计,带挑空客厅设计!
  • 农村三层新中式奢华风格别墅设计图纸,挑空客厅设计
  • 农村二层新中式别墅,占地100多平,带二楼阳台设计!
  • 农村三层现代风格别墅图纸设计,三楼大露台、平顶设计风格
  • 农村新中式风格自建房二层建筑,带挑空客厅设计,二楼侧面设计大露台!
  • 农村三层现代风格自建别墅,一层挑空客厅设计

施工百科

  • 农村建房地基要多少钱,不同地基价格不同,提前了解早做规划
  • 农村盖房需要多少钱,不用地区价格有些差异
  • 农村自建房找施工队-价格优惠,诚信可靠,值得信赖
  • 农村自建房基础施工步奏,以及基础施工注意细节
  • 农村建别墅斜坡屋面怎么施工,施工时要注意哪些事项
  • 农村自建房施工要注意哪些细节,在砌砖的时候一定要注意
农村自建房设计公司

一层别墅

二层别墅

三层别墅

多层别墅

设计百科

施工百科

行业动态

设计公司

设计图纸

建房专题

关于我们

联系我们

联系我们

13540838680

自建房设计公司联系方式

微信扫码联系

嘉庭乡墅建筑设计有限公司,蜀ICP备2025164756号,网站地图