• 首页
  • 设计案例
    一层别墅 二层别墅 三层别墅 多层别墅
  • 施工案例
  • 建房资讯
    设计百科 施工百科 行业动态
  • 关于嘉庭
  • 联系我们
  • 电话:13540838680
  1. 首页
  2. 设计案例
  3. 案例详情

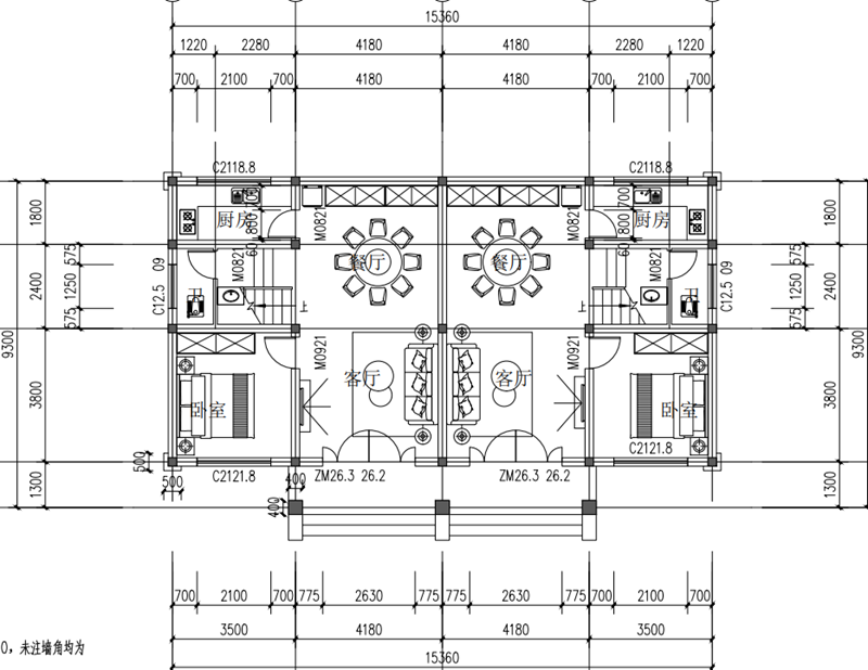
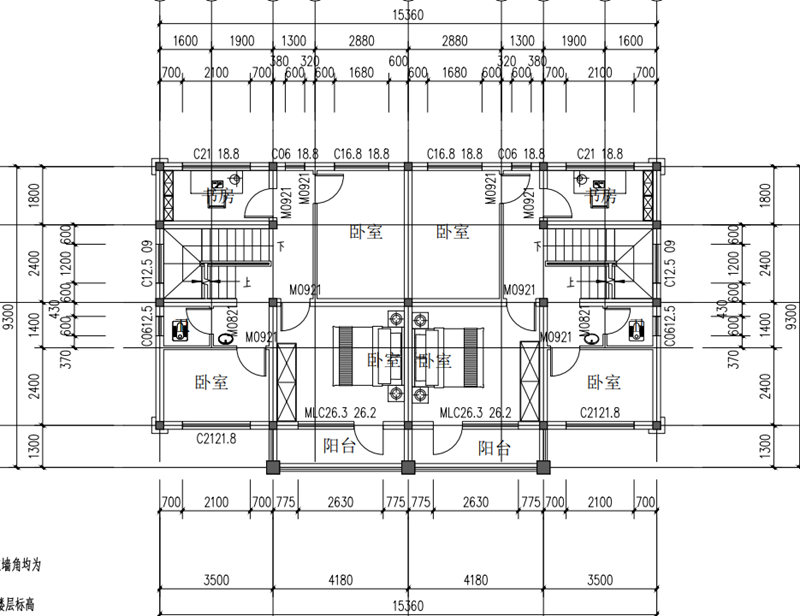
开间15米、进深9米,农村自建二层双拼新中式风格住宅别墅设计,外观轻奢风设计!

时间:2026-01-15 16:22:24 浏览人数:163 作者:HUAHUA
建筑层数:二层别墅
占地面积:135平米
建筑面积:270平米
建筑开间:15米
建筑进深:9米

0d75fdfb358a949c52c6d359cc793fcd.jpg

852207e7d5fb508e6094d941188248af.jpg

773f9b9455bba24fa14ce90e0489337d.jpg

2a7e43a9-d9fd-4b20-a362-378a96ab4584.png

a405a7cf-722e-41c8-b216-31b56c545776.png

JT-185

上一篇: 开间18米、进深12米,农村自建二层新中式风格住宅别墅,三合院设计特色!
下一篇: 开间11米、进深11米,农村自建二层新中式风格住宅别墅设计,带大露台设计!

设计百科

  • 开间14米、进深10米,三层农村自建经典欧式风格别墅设计,带挑空客厅设计!
  • 农村三层新中式奢华风格别墅设计图纸,挑空客厅设计
  • 农村二层新中式别墅,占地100多平,带二楼阳台设计!
  • 农村三层现代风格别墅图纸设计,三楼大露台、平顶设计风格
  • 农村新中式风格自建房二层建筑,带挑空客厅设计,二楼侧面设计大露台!
  • 农村三层现代风格自建别墅,一层挑空客厅设计

施工百科

  • 农村建房地基要多少钱,不同地基价格不同,提前了解早做规划
  • 农村盖房需要多少钱,不用地区价格有些差异
  • 农村自建房找施工队-价格优惠,诚信可靠,值得信赖
  • 农村自建房基础施工步奏,以及基础施工注意细节
  • 农村建别墅斜坡屋面怎么施工,施工时要注意哪些事项
  • 农村自建房施工要注意哪些细节,在砌砖的时候一定要注意
农村自建房设计公司

一层别墅

二层别墅

三层别墅

多层别墅

设计百科

施工百科

行业动态

设计公司

设计图纸

建房专题

关于我们

联系我们

联系我们

13540838680

自建房设计公司联系方式

微信扫码联系

嘉庭乡墅建筑设计有限公司,蜀ICP备2025164756号,网站地图