农村三层现代别墅设计图纸,带有大露台阳台设计

时间:2023-09-20 14:52:00 浏览人数:377 作者:admin

农村三层110平方现代别墅设计图纸采用了现代主义风格,注重简洁、线条流畅的设计理念。整体建筑形状呈矩形,以保持简洁的外观。别墅采用了三层结构,以满足居住者的各种需求。整个设计注重空间的合理布局和功能的实用性,同时也充分考虑到了居住者的隐私和舒适感。

农村三层现代别墅设计效果图

正面效果图

农村三层现代别墅设计效果图

左侧效果图

农村三层现代别墅设计效果图

背面效果图

农村三层现代别墅设计效果图

鸟瞰图

农村三层现代别墅设计平面图

一层户型:客厅、餐厅、厨房、品茶区、洗衣房、卫生间

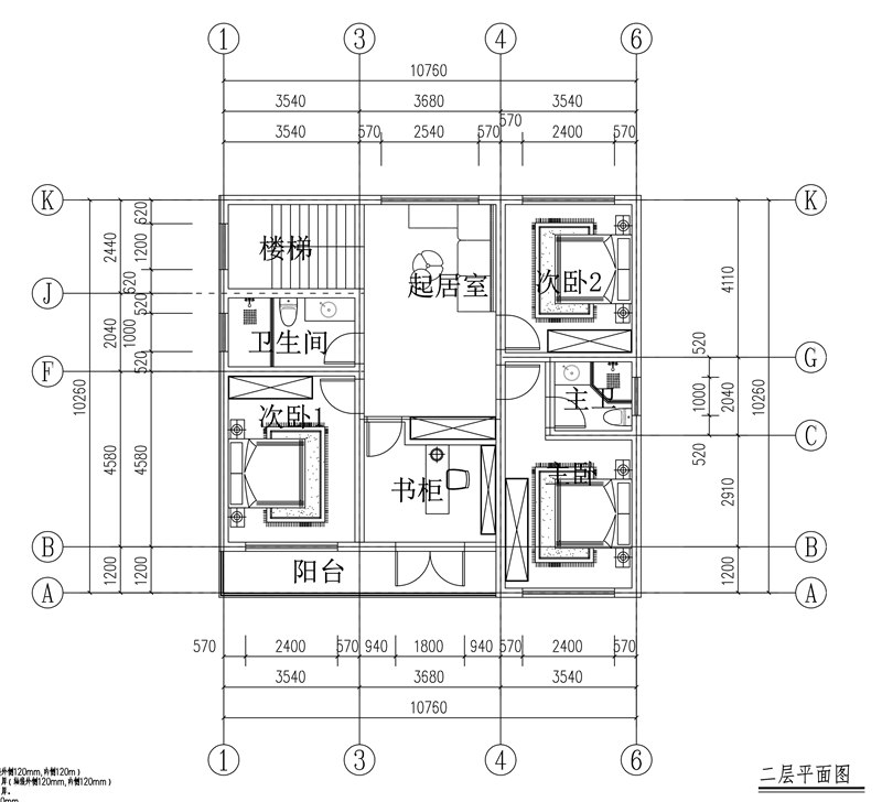
农村三层现代别墅设计平面图

二层户型:卧室(带卫生间)、卧室x2、书房、起居室

农村三层现代别墅设计平面图

三层平面:卧室(带卫生间)、衣帽间、起居室、卧室、卫生间