农村5层自建别墅设计,一层占地面积160平方,开间14.6米,进深11米,别墅外观采用新中式风格设计,别墅外墙主要采用真石漆进行喷涂,白色的真石漆搭配深色的门窗,层次分明,也让别墅的外观看起来更加沉稳大气,室内设计更是打破了传统的布局设计,让楼梯设计在房屋的中间位置,让四周的空间得到更好的利用。

正面效果图

侧面效果图

背面效果图

鸟瞰图

一层户型:客厅、餐厅、厨房、卧室、卫生间

二层平面:客厅、卧室、卫生间、厨房

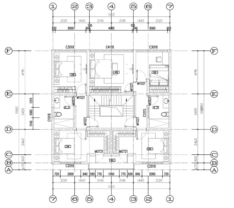
三层,四层布局图:卧室(带卫生间)、卫生间、书房

五层布局图:卧室x4、卫生间、露台