农村两层欧式自建别墅设计,两兄弟共用一个堂屋

时间:2023-10-16 18:32:29 浏览人数:574 作者:admin

农村的两层欧式自建别墅设计。外观设计方面,我们将采用欧式建筑的经典元素。建筑的外立面将采用白色的真石漆装饰,突出建筑的质感和气势。大面积的窗户将被设计在正面,以便充分利用自然光线,同时也能让室内外空间相互连接。由于宅基地面积有限,我么采用了两兄弟共用一个堂屋设计,让空间更大话利用。

农村两层欧式自建别墅设计效果图

正面效果图

农村两层欧式自建别墅设计效果图

背面效果图

农村两层欧式自建别墅设计效果图

鸟瞰图

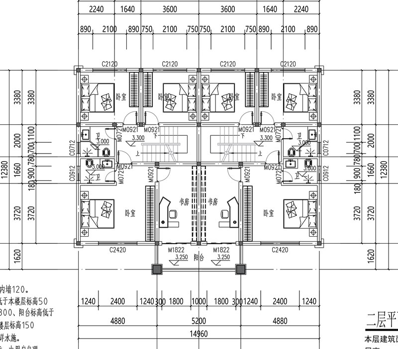
农村两层欧式自建别墅设计平面图

一层户型:堂屋、烤火房,卧室、卫生间

农村两层欧式自建别墅设计平面图

二层户型:卧室x3、卫生间、书房